搜索
才径谷 >建筑造价 >二级建造师 >2021年二级建造师《市政公用工程管理与实务》临考卷(一)

2021年二级建造师《市政公用工程管理与实务》临考卷(一)试卷及答案大全

永久免费查看
更新时间:2026-04-12

2021年二级建造师《市政公用工程管理与实务》临考卷(一)提供该考试科目的试卷全部试题及答案大全,科目内容齐全,答案供学员学习免费使用,助力考试通关!

第2题、 [单选题] 根据《沥青路面施工及验收规范》GB5009—1996规定,城市道路竣工验收时,沥青混合料路面抗滑表层应检查()。

A.构造深度、摩擦系数(摆值)

B.构造深度、粗糙度

C.构造深度、摩擦力

D.粗糙度、摩擦系数(摆值)

答案如下:
A
第3题、 [单选题] 二次衬砌仰拱混凝土强度达到()后,人员方可通行。

A.5MPa

B.6MPa

C.7MPa

D.10MPa

答案如下:
A
第4题、 [单选题] 承包人提交的最终索赔报告资料中不包含()。

A.索赔申请表

B.批复的索赔意向书

C.编制说明

D.结算资料

答案如下:
D
第5题、 [单选题] 对大型场区进行场地平整,场区适用的平面控制网为()。

A.建筑方格网

B.边角网

C.三角网

D.导线测量控制网

答案如下:
A
第6题、 [单选题] 生活垃圾填埋工程中,泥质防水层施工技术的核心是()。

A.选择最佳配合比

B.拌合均匀

C.控制含水量及压实度

D.掺加膨润土的拌合土层

答案如下:
D
第7题、 [单选题] 钢管采用焊接接口时,内壁错边量不宜超过()。

A.管壁厚度的15%,且不得大于3mm

B.管壁厚度的15%,且不得大于2mm

C.管壁厚度的10%,且不得大于3mm

D.管壁厚度的10%,且不得大于2mm

答案如下:
D
第8题、 [单选题] 用于城市地下管道全断面修复的方法是()。

A.内衬法

B.补丁法

C.密封法

D.灌浆法

答案如下:
A
第11题、 [单选题] 小导管注浆材料可采用(),浆液必须充满钢管及周围空隙。

A.沥青混合料

B.普通水泥浆

C.石棉水泥

D.沥青胶浆

答案如下:
B
第12题、 [单选题] 地铁区间隧道施工方法不包括()。

A.明挖法

B.暗挖法

C.盾构法

D.盖挖法

答案如下:
D
第14题、 [单选题] 城市道路沥青路面,面层的使用要求指标中,不包括的内容是()。

A.抗滑能力

B.透水性

C.承载能力

D.抗冻能力

答案如下:
D
第15题、 [单选题] 关于热拌沥青混合料面层施工的说法,正确的是()。

A.铺筑高等级道路沥青混合料时,1台摊铺机的铺筑宽度不宜超过6m

B.摊铺机必须缓慢、均匀、连续不间断地摊铺,可随意变换速度或中途停顿,以提高平整度,减少沥青混合料的离析

C.摊铺的混合料,使用人工反复修整

D.摊铺机开工前应提前0.5~1h预热熨平板使其不低于120℃

答案如下:
A
第16题、 [单选题] 后张法预应力施工中,预应力筋张拉后应及时进行孔道压浆,下列关于孔道压浆说法错误的是()。

A.当白天气温高于35℃时,压浆宜在夜间进行

B.压浆完成24h以后,结构混凝土的温度可以低于5℃

C.压浆作业每一工作班应留取不少于3组砂浆试块,标养28d

D.水泥浆的强度应符合设计要求,设计无要求时不得低于30MPa

答案如下:
B
第17题、 [单选题] 适用于水深3m以内,水流流速1.5m/s以内,河床土质渗水较小时的围堰是()。

A.土袋围堰

B.钢板桩围堰

C.套箱围堰

D.钢筋混凝土板桩围堰

答案如下:
A
第18题、 [单选题] 预应力混凝土连续梁悬臂浇筑施工中,顶、腹板纵向预应力筋的张拉顺序一般为()张拉,设计有要求时按设计要求。

A.上左、下右对称

B.左右对称

C.右上、左下对称

D.上下、左右对称

答案如下:
D
第19题、 [单选题] 施工进度控制总结包括的内容为()

A.实际施工进度图

B.计划调整意见和建议

C.施工进度控制经验与体会

D.进度偏差的状况和导致偏差的原因分析

答案如下:
C
第20题、 [单选题] 二级注册建造师与一级注册建造师执业的工程范围基本相同,但是执业规模有所差异。下列选项符合二级注册建造师执业规模的是()

A.交通安全防护工程小于1000万元

B.机电设备安装工程小于2000万元

C.庭院工程小于1500万元

D.绿化工程小于500万元

答案如下:
D
第21题、 [多选题] 水下混凝土灌注和桩身混凝土质量问题主要有()。

A.灌注混凝土时堵管

B.灌注混凝土过程中钢筋骨架上浮

C.桩身混凝土强度低或混凝土离析

D.扩径

E.桩身混凝土夹渣或断桩

答案如下:
A,B,C,E
第22题、 [多选题] 关于安全生产管理方案编制的说法,正确的有()。

A.安全生产管理方案应在施工活动过程中编制并实施

B.制定出针对重大危险源和重大不利环境因素的管理控制方案

C.制定安全记录的填写和保管要求

D.落实各类资源,从组织上、人力上、财力上给予保证

E.按照PDCA循环的管理模式,结合工程和项目部特点制定符合标准要求的管理程序,并认真加以论证,付诸实施

答案如下:
B,D,E
第23题、 [多选题] 技术组织措施是为保证选择的施工方案实施的措施,它包括()的各种技术措施。

A.加快施工进度

B.保证工程质量

C.降低工程成本

D.选择施工机械

E.保证施工安全

答案如下:
A,B,C,E
第24题、 [多选题] 关于道路施工测量的说法,正确的有()。

A.道路高程测量应采用方格网测量

B.道路及其附属构筑物平面位置应以道路中心线作为施工测量的控制基准

C.道路及其附属构筑物高程应以道路中心线部位的路面高程为基准

D.填方段路基应每填一层恢复一次中线、边线并进行高程测设

E.道路直线段范围内,各类桩间距一般为8~10m

答案如下:
B,C,D
第25题、 [多选题] 关于供热管网试运行的要求,正确的有()。

A.供热管线工程宜与换热站工程联合进行试运行

B.试运行开始后,每隔1h对补偿器及其他管路附件进行检查,并做好记录

C.试运行期间,管道法兰、阀门、补偿器及仪表等处的螺栓应进行热拧紧

D.试运行期间发现的问题,不影响试运行安全的,可待试运行结束后处理

E.试运行期间出现需要立即解决的问题,当即停止试运行,进行处理

答案如下:
C,D,E
第26题、 [多选题] 下列关于满水试验标准说法正确的是()。

A.水池渗水量计算,按池壁(含内隔墙)和池底的浸湿面积计算

B.水池渗水量计算,按池壁(不含内隔墙)和池底的浸湿面积计算

C.钢筋混凝土结构水池不得超过3L/(㎡·d)

D.砌体结构水池不得超过2L/(㎡·d)

E.钢筋混凝土结构水池不得超过2L/(㎡·d)

答案如下:
B,E
第27题、 [多选题] 下列选项属于地铁车站组成部分的是()。

A.站台

B.人行天桥

C.行车道

D.出入口及通道

E.通风道

答案如下:
A,B,D,E
第28题、 [多选题] 土质路基压实试验的目的主要有()

A.合理选用压实机械

B.确定路基预沉量值

C.确定压实遍数

D.防止漏夯

E.确定路基宽度内每层虚铺厚度

答案如下:
A,B,C,E
第29题、 [多选题] 关于围堰施工的说明,正确的有()。

A.围堰应防水严密,不得渗漏

B.围堰应便于施工、维护及拆除。围堰材质不得对现况河道水质产生污染

C.围堰应减少对现状河道通航、导流的影响。对河流断面被围壤压缩而引起的冲刷,应有防护措施

D.堰内平面尺寸应满足基础施工的需要

E.围堰高度应与施工期间可能出现的最高水位(包括浪高)相同

答案如下:
A,B,C,D
第30题、 [多选题] 箱涵顶进前检查工作有()

A.箱涵主体结构混凝土强度必须达到设计强度,防水层及保护层按设计完成

B.后背施工、线路加固达到施工方案要求;顶进设备及施工机械符合要求

C.启动时,现场必须有主管施工技术人员专人统一指挥

D.顶进设备液压系统安装及预顶试验结果符合要求

E.所穿越的线路管理部门的配合人员、抢修设备、通信器材准备完毕

答案如下:
A,B,D,E
第31题、 [主观题] 某公司承建城区防洪排涝应急管道工程,受环境条件限制,其中一段管道位于城市主干路机动车道下,垂直穿越现况人行天桥,采用浅埋暗挖隧道形式,隧道开挖断面3.9m×3.35m,横断面布置如下图所示。施工过程中,在沿线3座检查井位置施工做工作竖井,井室平面尺寸长6.0m,宽5.0m。井室、隧道均为复合式衬砌结构,初期支护为钢隔栅+钢筋网+喷射混凝土,二次衬砌为模筑混凝土结构,初期支护与二次衬砌间设塑料板防水层。隧道穿越土层主要为砂层、粉质黏土层,无地下水。设计要求施工中对机动车道和人行天桥进行重点监测,并提出了变形控制值。

施工前,项目部编制了浅埋暗挖隧道下穿道路专项施工方案,拟在工作竖井位置占用部分机动车道搭建临时设施,进行工作竖井施工和出土。施工安排3个竖井同时施做,隧道相向开挖,以满足工期要求。
在施工区域内项目部采取了以下环保措施:
措施一:对现场临时材料堆场进行硬化,散装材料进行覆盖。
措施二:临时堆土采用密目网进行覆盖。
措施三:夜间施工部分进行露天焊接作业,控制好照明装置灯光亮度。
问题:
1.根据下穿人行天桥隧道横断面示意图,分析隧道施工对周边环境可能产生的安全风险。
2.工作竖井施工前,项目部应向哪些部门申报、办理哪些报批手续。
3.给出下穿施工的重点监测项目,简述监测方式。
4.简述隧道相向开挖贯通施工的控制措施。
5.结合背景资料,补充项目部应采取的环保措施。
答案如下:
1.主要是隧道施工影响范围内的安全风险,具体为:
(1)机动车道路面变形(沉陷、开裂)引起的交通安全风险。
(2)隧道离桩基较近,可能影响桩基的承载能力,导致人行天桥位移、变形的安全风险。
(3)拟在工作竖井位置占用部分机动车道搭建临时设施,进行工作竖井施工和出土,存在交通安全风险。
2.工作竖井施工前,项目部应申报、办理下述报批手续:
(1)工作竖井施工前,项目部应向交通管理和道路管理部门申报交通导行方案。
(2)需要临时占用城市道路的,须经市政工程行政主管部门和公安交通管理部门批准。
(3)因工程建设需要挖掘城市道路的,应当持城市规划部门批准签发的文件和有关设计文件,到市政工程行政主管部门和公安交通管理部门办理审批手续。
(4)向市政交通行政主管部门申请渣土运输手续。
(5)因特殊需要必须连续作业的(涉及夜间施工),必须有县级以上人民政府或者其有关主管部门的证明,且公告附近居民。
(6)因建设或者其他特殊需要临时占用城市绿化用地,须经城市人民政府城市绿化行政主管部门同意,并按照有关规定办理临时用地手续。
3.道路重点监测地面沉降及路面开裂,人行天桥重点监测结构物沉降及变形,采用人工巡查及水准仪监测标高的方式。
4.相向开挖的两个开挖面相距约2倍隧径时,应停止一个开挖作业面,进行封闭;由另一开挖作业面贯通开挖。
5.(1)大气污染防治:土方应采取覆盖、固化、洒水降尘措施;对施工场地的临时道路进行硬化处理,洒水降尘。
(2)噪声污染防治:对现场施工噪声进行检测,强噪声设施远离居民,车辆禁止鸣笛,夜间施工办理相关手续。
(3)光污染防治:按设计和规范要求设置照明装置,照明光源朝向场内,电焊作业等强光作业搭设罩棚。
(4)防治水污染:施工场地应设置排水沟及沉淀池,必须防止污水、泥浆泄露外流污染环境;污水应尽可能重复使用,且按照规定排入市政污水管道或河流,泥浆应采用专用罐车外弃。
(5)防治施工固体废弃物污染:从事土方、渣土和施工垃圾运输车辆应采用密闭或覆盖措施;施工现场出入口设置洒水清洗装置,对进出车辆进行洒水、清洗;安排专人对道路进行清扫。
第32题、 [主观题] 某市为了交通发展需修建一条双向快速环线(如图4-1所示),里程桩号为K0+000~K19+998.984。建设单位将该建设项目划分为10个标段。项目清单如表4所示,当年10月份进行招标,拟定工期为24个月,同时成立了管理公司,由其代建。

各投标单位按要求中标后,管理公司召开设计交底会,与会参加的有设计、勘察、施工单位等。开会时,有③、⑤标段的施工单位提出自己中标的项目中各有1座泄洪沟小桥的桥位将会制约相邻标段的通行,给施工带来不便,建议改为过路管涵,管理公司表示认同,并请设计单位出具变更通知单,施工现场采取封闭管理,按变更后的图纸组织现场施工。
③标段的施工单位向管理公司提交了施工进度计划横道图(如图4-2所示)


问题:
1、按表4所示,根据各项目特征,该建设项目有几个单位工程?写出其中⑤标段A的项目内容。⑩标段完成的长度为多少米?
2、成立的管理公司担当哪个单位的职责?与会者还缺哪家单位?
3、③⑤标段的施工单位提出变更申请的理由是否合理?针对施工单位提出的变更设计申请,管理公司应如何处理?为保证现场封闭施工,施工单位最先完成与最后完成的工作是什么?
4、写出③标段施工进度计划横道图中出现不妥之处,应该怎样调整?
答案如下:
1.(1)29个单位工程
(2)A:道路工程、排水工程、沿路跨河中小桥
(3)⑩标段完成的长度为:19998.984-18000=1998.984m
2.(1)担当建设单位的职责;
(2)与会者还缺:监理单位、建设单位
3.(1)合理;
(2)管理单位应同意并协调办理变更手续。
(3)最先完成的工作:施工围挡安装;最后完成的工作:施工围挡拆除
4.不妥之处:过路管涵施工在第19月~第22月;
调整:过路管涵施工调整为与道路施工同步进行。(从第3个月开始到第6个月结束)。
第33题、 [主观题] 某公司中标污水处理厂升级改造工程,处理规模为70万m3/d,其中包括中水处理系统。中水处理系统的配水井为矩形钢筋混凝土半地下室结构,平面尺寸17.6m×14.4m,高11.8m,设计水深9m;底板、顶板厚度分别为1.1m、0.25m。
施工过程中发生了如下事件:
事件一:配水井基坑边坡坡度1:0.7(基坑开挖不受地下水影响),采用厚度6~10cm的细石混凝土护面。配水井顶板现浇施工采用扣件式钢管支架,支架剖面如下图所示。方案报公司审批时,主管部门认为基坑缺少降、排水设施,顶板支架缺少重要杆件,要求修改补充。

事件二:在基坑开挖时,现场施工员认为土质较好,拟取消细石混凝土护面,被监理工程师发现后制止。
事件三:施工过程中,由于设备安装工期压力,中水管道未进行功能性试验就进行了道路施工(中水管在道路两侧)。试运行时中水管道出现问题,破开道路对中水管进行修复造成经济损失180万元,施工单位为此向建设单位提出费用索赔。
问题:
1.配水井顶板支架剖面示意图中基坑缺少哪些降、排水设施?顶板支架缺少哪些重要杆件?
2.指出下面两图中A、B的名称,简述本工程采用穿墙螺栓的作用。

3.事件二中,监理工程师为什么会制止现场施工员行为?取消细石混凝土护面应履行什么手续?
4.事件三所造成的损失能否索赔?说明理由。
5.配水井满水试验宜分几次充水?分别列出每次充水高程。
答案如下:
1.缺少的降水设施:(1)排水明沟;(2)集水井;(3)排水泵;(4) 截水沟;(5)防汛墙。
顶板支架缺少的重要杆件:(1)扫地杆;(2)水平剪刀撑;(3)竖向剪刀撑;(4)水平杆;(5)斜撑。
2.A:止水环;B:膨胀防水砂浆。
采用穿墙螺栓的作用:平衡浇筑混凝土对模板的侧压力,防止模板变形和位移。 
3.因为施工员违反已经审批的施工方案进行作业。
取消细石混凝土护面属于方案变更,应重新编制、论证,并经原批准程序批准后方可实施。
4.不能。
理由:未做功能性试验且施工进度安排不当,属于施工方自己的责任。
5.本配水井满水试验注水宜分3次进行。每次注水为设计水深的1/3。
第一次充水高程:应先注水至池壁底部施工缝以上,检查底板抗渗质量,当无明显渗漏时,再继续注水至第一次水深3m,即490.6+3=493.6m处。
第二次充水高程:493.6+3=496.6m。
第三次充水高程:496.6+3=499.6m。
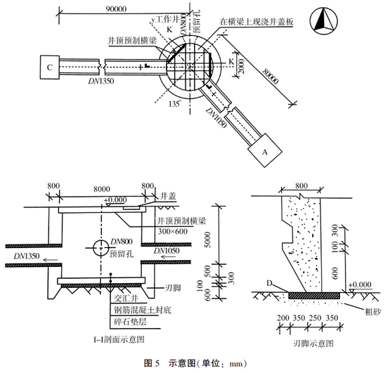
第34题、 [主观题] 项目部承接一项顶管工程,其中DN1350mm管道为东西走向,长度90m;DN1050mm管道为偏东南方向走向,长度80m,设计要求始发工作井y采用沉井法施工,接收井A、C为其他标段施工(如图5示),项目部按程序和要求完成了各项准备工作。

开工前,项目测量员带一测量小组按建设单位给定的测量资料进行高程点与y井中心坐标的布设,布设完毕后随即将成果交予施工员组织施工。
按批准的进度计划先集中力量完成y井的施工作业,按沉井预制工艺流程,在已测定的圆周中心线上按要求铺设粗砂与D,采用定型钢模进行刃脚混凝土浇筑,然后按顺序先设置E与F、安装绑扎钢筋,再设置内、外模,最后进行井壁混凝土浇筑。
下沉前,需要降低地下水(已预先布置了喷射井点),采用机械取土;为防止y井下沉困难,项目部预先制定了下沉辅助措施。
y井下沉到位,经检验合格后,顶管作业队进场按施工工艺流程安装设备:K→千斤顶就位→观测仪器安放→铺设导轨→顶铁就位。为确保首节管节能顺利出洞,项目部按预先制定的方案在y井出洞口进行土体加固:加固方法采用高压旋喷注浆,深度6m(地质资料显示为淤泥质黏土)。
问题:
1.按测量要求,该小组如何分工?测量员将测量成果交予施工员的做法是否正确,应该怎么做?
2.按沉井预制工艺流程写出D、E、F的名称;本项目对刃脚是否要加固,为什么?
3.降低地下水的高程至少为多少米(列式计算)?有哪些机械可以取土?下沉辅助措施有哪些?
4.写出K的名称,应该布置在何处?按顶管施工的工艺流程,管节启动后,出洞前应检查哪些部位?
5.加固出洞口的土体用哪种浆液,有何作用?注意顶进轴线的控制,做到随偏随纠,通常纠偏有哪几种方法?
答案如下:
1.(1)测量员:对控制点进行复测;进行平面控制网及高程控制网布设,必须实行复核制,并履行书面签字手续;对于控制桩进行加固保护,并定期复核。
配合人员∶辅助测量,扶尺,布设测桩并保护。
(2)布设完毕后随即将成果交予施工员组织施工的做法不正确。布设完毕后应采用不同数据采集人核对的方法,分别核对从图纸上采集的数据、实测数据的计算过程与计算结果,并据以判定测量成果的有效性,并报监理工程师复核后方可使用。
2.(1)D一垫木,E一支架和脚手架,F一预留孔和管道洞口预埋件
(2)该沉井下沉位置的地质为淤泥质黏土,非坚硬地层,刃脚位置无需特殊加固。若为防止脚踏面受损,可在踏面部位使用角钢加固。
3.(1)地下水位应降低至刃脚踏面以下0.5m。则应降至标高为0.000-5.000-0.5-0.3-0.1-0.6-0.5=-7.000(m)
(2)抓铲挖土机、长臂挖掘机、抓斗吊。
(3)下沉辅助措施有:①沉井外壁采用阶梯以减少下沉摩擦阻力时,在井外壁与土体之间应有专人随时用黄砂均匀灌入;②采用触变泥浆套助沉;③空气幕助沉;④爆破方法开挖下沉。
4.(1)K-后背墙(后背、后座或后座墙),应布设在沉井井壁和千斤顶之间,后背工作面与管道轴线垂直。
(2)管节启动后,出动前应检查顶进设备(顶铁、千斤顶、油泵、油表)是否运行正常,管节本体是否出现裂痕破坏,沉井井壁是否出现裂痕,顶进开挖面是否稳定。
5.(1)可采用水泥浆、化学浆液。起到洞口土体加固及洞门密封防水堵水的作用,保证开挖面的稳定,防止地层过大变形。
(2)顶进纠偏方法有:挖土校正法、强制校正法、衬垫校正法、调整顶进合力位置法。